tearquitectes - Disseny, interiorisme i arquitectura - biblioteca de projectes
Edificació · Habitatge unifamiliar a Blanes (Girona) (Octubre 2009)

Habitatge unifamiliar a Blanes (Girona)

Habitatge unifamiliar a Blanes (Girona)
Planta baixa

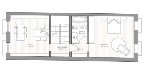
Habitatge unifamiliar a Blanes (Girona)
Planta primera

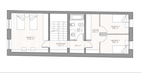
Habitatge unifamiliar a Blanes (Girona)
Planta segona

Habitatge unifamiliar a Blanes (Girona)
Planta coberta

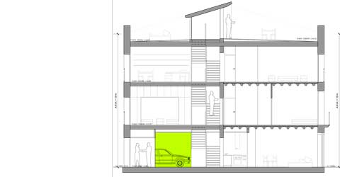
Habitatge unifamiliar a Blanes (Girona)
Secció longitudinal

Estat: En redacció
Lloc: Blanes (Girona)
Client: Privat


<< Tornar