tearquitectes - Disseny, interiorisme i arquitectura - biblioteca de projectes
Edificació · Refoma habitatge a Sant Cugat del Vallès (Barcelona) (Febrer 2008)

Situació: Carretera de Cerdanyola
Any: 2008
Tipus: Reforma habitatge
Client: Privat


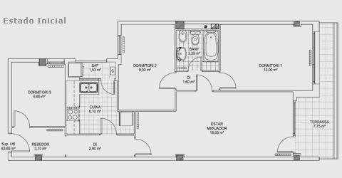
Refoma habitatge a Sant Cugat del Vallès (Barcelona)

Refoma habitatge a Sant Cugat del Vallès (Barcelona)

Refoma habitatge a Sant Cugat del Vallès (Barcelona)

Estat: Finalitzat
Lloc: Sant Cugat del Vallès
Client: Privat


<< Tornar