tearquitectes - Disseny, interiorisme i arquitectura - biblioteca de projectes
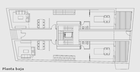
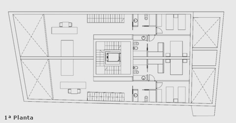
Edificació · Habitatges a Badalona (Barcelona) (Desembre 2007)

Situació: Passeig de la Rambla (Badalona)
Any: 2007
Tipus: Reforma habitatge unifamiliar
Client: Privat


Habitatges a Badalona (Barcelona)

Habitatges a Badalona (Barcelona)

Habitatges a Badalona (Barcelona)

Estat: Finalitzat
Lloc: Badalona
Client: Privat


<< Tornar